KÄTKÄNKIEPPI
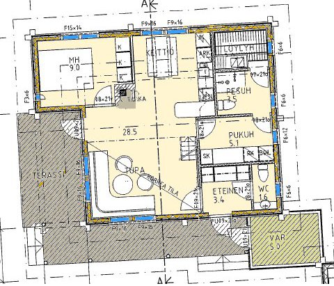
Alakerta
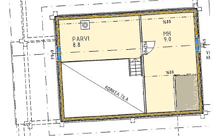
Yläkerta
Yleistä
Sijainti
Tekniset tiedot
Pohjakuva
Hinnasto
Yhteystiedot
Palaute
Kuvat